Construction d'un chalet individuel à Chamonix

CK Architecte vous présente ses dernières photos. 

Prenez contact dès à présent :  architecte à Bonneville et son secteur.

Fiche technique

  • Lieu : Chamonix
  • Maître d'ouvrage : Privé
  • Mission : Permis
  • Surface : 140 m²
  • Coût : 450 000€ - 550 000€ HT
  • Etat du projet : Permis de construire accordé en 2025
  • Construction d'un chalet avec soubassements maçonnés et étage en ossature bois
  • Respecter les contraintes de PPR
  • Orientation du projet pour bénéficier des vues sur les massifs du Mont-Blanc
  • Construction selon les normes RE2020

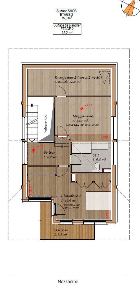
Ce projet situé en Haute-Savoie sur la commune de Chamonix consiste en la construction d'un chalet individuel avec un garage intégré au volume de la construction. La surface totale de 140m² est répartie sur 3 niveaux.

Une attention particulière est portée aux matériaux utilisés afin de respecter les codes des constructions environnantes et de l'architecture traditionnelle.