CK Architecte vous présente ses dernières photos.
Prenez contact dès à présent : architecte à Bonneville et son secteur.
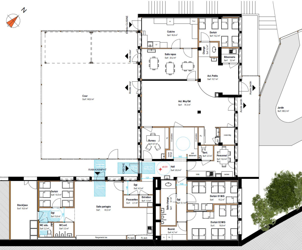
Fiche technique
- Lieu : Sillingy
- Maître d'ouvrage : Public
- Mission : Complète
- Surface : 434 m²
- Coût : > 400 000€ HT
- Etat du projet : Livré en 2022
- Intervention en site occupé
- Respect des normes d’accessibilité et incendie
- Respect des contraintes de la PMI